Zo gebouwd!
laPlage

Residentie Oostkant

Zeedijk 305-306, 8430 Middelkerke-Westende

Beschrijving
Een realisatie van bouwbedrijven Gent Woningbouw en Westbouw.
De kelderverdieping bevat 20 private bergplaatsen (één voor elk appartement), diverse servicelokalen, één gemeenschappelijke fietsenberging, 3 garageboxen en 2 overdekte parkeerplaatsen.
De gelijkvloerse verdieping bevat de inkom, twee appartementen met twee slaapkamers elk met koer en 1 diepe garagebox.
De eerste tot en met achtste verdieping herbergt telkens twee 2-slaapkamer appartementen.
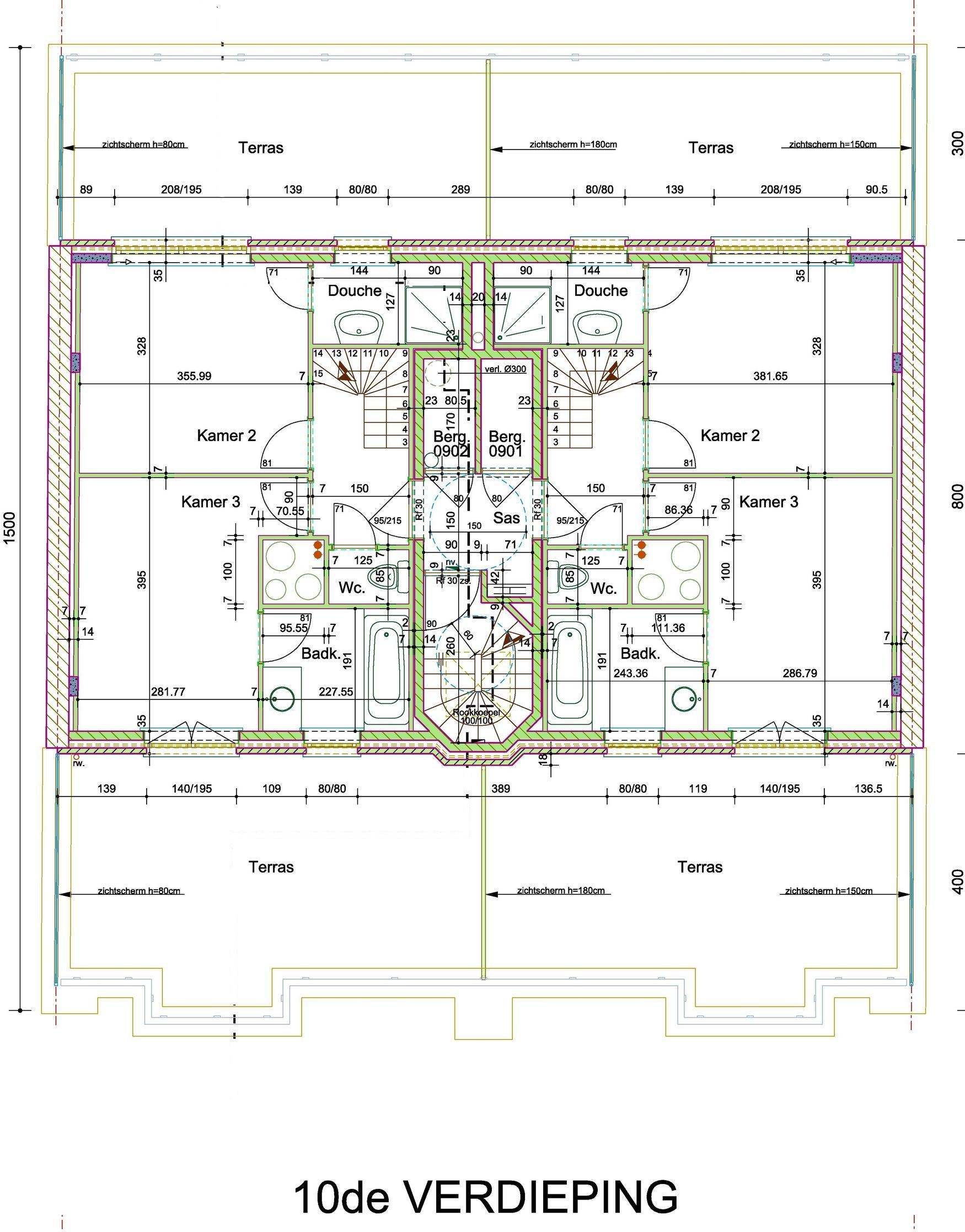
De negende en tiende verdieping bevat twee drie-slaapkamer duplex appartementen.

Elk appartement heeft een uitzonderlijke brede woonkamer : 6,20m netto !


Realisatie : Gent Woningbouw (gronden) & Westbouw (bouwwerken)
Ontwerp : Ir Arch W. Depicker

start werken op 30/9/2019
opgeleverd 3/12/2021
Ligging
menu
Gevel
menu
Plannen
(Klik op plan voor groter plan.)
menu
Prijzen
menu
Eigendom
Verdieping
Type
Oppervlakte m2
Terras m2

0001

0

2 slaapkamers

80

25

0002

0

2 slaapkamers

74

14

0101

1

2 slaapkamers

84

10

0102

1

2 slaapkamers

83

10

0201

2

2 slaapkamers

84

10

0202

2

2 slaapkamers

83

10

0301

3

2 slaapkamers

85

9

0302

3

2 slaapkamers

84

9

0401

4

2 slaapkamers

85

9

0402

4

2 slaapkamers

84

9

0501

5

2 slaapkamers

85

9

0502

5

2 slaapkamers

84

9

0601

6

2 slaapkamers

85

9

0602

6

2 slaapkamers

84

9

0701

7

2 slaapkamers

85

9

0702

7

2 slaapkamers

84

9

0801

8

2 slaapkamers

85

9

0802

8

2 slaapkamers

84

9

0901

9 + 10

3 slaapkamers duplex

128

44

0902

9 + 10

3 slaapkamers duplex

127

44

garage -1

-1

afgesloten garagebox

-

-

parking -2

-1

overdeke parkeerplaats

-

-

parking -3

-1

overdekte parkeerplaats

-

-

garage -4

-1

afgesloten garagebox

-

-

garage -5

-1

afgesloten garagebox

-

-

garage +1

0

afgesloten garagebox

-

-

Foto's
menu
Deze foto's geven een impressie van mogelijke uitvoeringen. Naast de standaarduitvoering tonen ze ook mogelijke afwijkingen en supplementen.
Lastenboek
menu

A. GEMEENSCHAPPELIJKE GEDEELTEN

1. BEVLOERINGEN.

In de publieke inkom : vloer in marmer of gelijkwaardige natuursteen met vloermat.
In de trapzalen en liftsassen : vloer, treden en plinten in natuursteen of gelijkwaardige keramiek.
In de kelders en keldergangen : een glad gepolierde betonvloer.

2. TRAPPEN.

Trapbekleding, treden en tegentreden met plinten is voorzien in natuursteen.
De trapleuning bestaat uit vertikaal geplaatste buizen in aluminium met meranti handgrepen.

3. MUURBEKLEDING.

De muren van de trapzaal en de onderkant van de trappen wordt voorzien van een sterke crépibezetting of gelijkwaardig.
De publieke inkom wordt bekleed met marmer of gelijkwaardige natuursteen, een verlaagd plafond in planchetten met ingebouwde verlichting. Een modern ensemble brievenbussen en videofoon vult de inkom verder aan.

4. SCHRIJNWERKEN.

In de inkom komen 2 beglaasde deuren in dark red maranti met sierlijke krukken en een deurveer die ze zelfsluitend maakt.
De eerste deur kan geopend worden zonder sleutel zodat videofoon en brievenbussen vrij toegankelijk zijn, de tweede kan enkel geopend worden met een appartement sleutel.
De kelderdeuren bestaan uit voorgeplamuurde deurbladen, geschilderd en voorzien van een houten omlijsting aan de kant van de gang.

5. LIFT.

De ruime zespersonenlift met schuifdeuren beantwoordt aan de Belgische normen inzake veiligheid. De lift zal een spiegel, een handgreep en een noodverlichting bevatten.
Een motor met twee snelheden stopt de cabine op perfecte wijze op het gewenste niveau. Elektronische ogen verzekeren een perfecte veiligheid. Signalisatie binnen en buiten de kooi.

6. ELEKTRICITEIT.

De gemeenschappelijke verlichtingsinstallatie zal aan de moderne technologie beantwoorden.
Om een maximum aan komfort te bieden met een minimum aan verbruik zal deze zoveel mogelijk automatisch werken. De ingebouwde verlichting in de inkom, de aangepaste verlichtingsarmaturen in de trapzaal, liftsas en gemeenschappelijke gangen werkt op minuterie en wordt bediend met drukknoppen. Elk dienstlokaal wordt voorzien van een verlichting.

7. VIDEOFOON EN BELINSTALLATIE.

In elk appartement zorgt een videofoon voor communicatie met de inkom. Vanuit elk appartement kan de benedendeur worden ontgrendeld.
De ingangsdeur van elk appartement is voorzien van een extra deurbel. Elke belknop en elke brievenbus in de inkomhal wordt voorzien van een houdertje voor een naamplaatje.

8. SCHILDERWERKEN.

Alle gemeenschappelijke delen worden afgewerkt. De schilderwerken in de private delen zijn ten laste van de kopers.
Alle buitenschrijnwerk wordt voorzien van drie lagen houtverduurzamende verf.
Het buitenschrijnwerk en de binnendeuren van de gemeenschappelijke delen worden voorzien van twee lagen verf waarvan de laatste een émaillaag is.
Alle wanden van de trapzaal en de liftsassen worden afgewerkt met een sterke crépi bezetting of gelijkwaardig.

9. BRANDBEVEILIGING.

Het gebouw voldoet aan alle Belgische normen inzake brandveiligheid.
Alle door de wet voorgeschreven voorzieningen met betrekking tot brandvrije deuren, opengaande rookkoepels, noodverlichting, brandmelding, brandhaspels en brandblussers zullen geplaatst worden op aanwijzen van de brandweer.

B. PRIVATIEVE GEDEELTEN

1. BEVLOERINGEN.

De living, hall, de vestiairekast, het toilet, de berging en de keuken worden bevloerd met keramische tegels, afgewerkt met bijbehorende plinten.
De slaapkamers krijgen laminaat met bijbehorende plinten.
In de badkamer worden vloeren en muren bekleed in met elkaar overeenstemmende keramische tegels, keuze uit meerdere sierlijke motieven.
De muur boven het werkblad evenals het werkblad zelf in de keuken wordt voorzien in composiet.
Tussendorpels in alle deuropeningen en eventuele venstertabletten worden uitgevoerd in travertin, natuursteen of gelijkwaardig.
De terrassen worden uitgevoerd in een silex/kwartsmengeling, volledig in één stuk gegoten, eventueel in tegels boven de platte daken.

2. SCHRIJNWERKEN.

De ramen worden vervaardigd uit eerste keus Dark Red Meranti, voorzien van tochtstrips in alle bewegende delen, van isolerende dubbele beglazing en de nodige ventilatieroosters.
De speciaal voor de kust ontworpen raamsystemen waarborgen een volledige water- en winddichtheid.
Multiplex gordijnbakken worden tegen het plafond bevestigd over de volledige lengte van de muur.
Alle binnendeuren bestaan uit een volle kern, bekleed met gestratificeerde plaat. Massieve omlijsting in eerste keus Dark Red Meranti, scharnieren en zeer sierlijke matte chroom krukken met slot en sleutelplaten.
Een glazen deur in veiligheidsglas, voorzien van een deurknop, scheidt de hall van de living.
De ingangsdeur is brandvertragend en voorzien van een veiligheidscylinderslot met een driepuntsluitingen. Ook een spionoog is voorzien.

3. ISOLATIEMATERIALEN.

We besteden een bijzondere aandacht aan de thermische - en akoestische isolatie (tegen burenhinder). Daartoe worden alle scheidingsmuren ontdubbeld en worden zij uitgevoerd in twee verschillende materialen met verschillende diktes en wordt de luchtruimte ertussen opgevuld met stijve minerale wolplaten.
De binnenmuren worden uitgevoerd in isolerende gipsblokken. Het volledig betonskelet van de gevels wordt thermisch geïsoleerd.
De vloeren zijn isolerend en "vlottend": op de ruwe massieve betonvloer komt een geluidabsorberende en thermisch isolerende laag waarop de chape gegoten wordt; totale dikte ca. 30 cm.
Alle beglazing is dubbel en isolerend.
De dakplatformen worden perfect geïsoleerd met stijve isolatieplaten op basis van polyurethaan.
Tot slot worden de bekleding van ramen en ingangsdeur geïsoleerd met minerale wolmatten.

4. ELEKTRISCHE INSTALLATIE.

De tellers worden geplaatst in een apart tellerlokaal. Naast een hoofdschakelkast wordt voor elk appartement een meter met hoofdzekering voorzien.
Op het appartement zelf wordt een tweede zekeringenkast geplaatst met automatische zekeringen voor alle stroomcircuits.

De installatie wordt uitgevoerd conform de Belgische normen, volgens de voorschriften van de stroombedelende maatschappij en het erkend keuringsorganisme.
De teller is een dubbeltariefmeter.

5. DE INDIVIDUELE GAS VERWARMING.

Een door een gespecialiseerde firma bestudeerde, individuele gasverwarming wordt voorzien.
Deze verwarmingsinstallatie is uiteraard aangepast aan het isolatievermogen van het gebouw.
Plaatstalen radiatoren in living, eventueel keuken, slaapkamers en badkamer en/of douchecel.
De gasketel komt in de berging.
Alle apparatuur is van een gekend merk en wordt geplaatst door een gespecialiseerde firma.
Elke verwarming is individueel. Er zijn dus geen onderlinge afrekeningen voor de verwarming.

6. DE SANITAIRE INSTALLATIE.

In de badkamer vindt u waar mogelijk twee in het badkamermeubel ingebouwde lavabo's, onderaan voorzien van handdoekkastjes. Het meubel is uitgevoerd in witte meubelplaat van prima kwaliteit, spiegelkasten met ingebouwde lichtspots, mengkranen en handdoekdragers.
De badkuip is in polyester met een ééngreepsmengkraan en handdouche.
De sierlijke verchroomde kranen zijn in badkamer en keuken ééngreepsmengkranen.
Douche met douchetub in polyester met thermostatische kraan en glazen deur.
Het toilet is uitgerust met een hangtoilet in sanitair porselein met dubbele bril en een geluidsarme jachtbak, een handwasbakje eveneens in sanitair porselein met kleine spiegel, kraantje en verchroomde rolhouder. Alle toestellen zijn voorzien in wit.
De warmwaterproduktie gebeurt eveneens individueel per appartement via de gasketel van de verwarming.
De waterleidingen worden uitgevoerd in Alpex.
Een individuele waterteller is voorzien voor elk appartement. Alle afvoerleidingen worden uitgevoerd in harde PVC en zijn temperatuurbestendig en geschikt voor sanitaire afvoer.
Alle verticale leidingen liggen in speciaal daartoe voorziene kokers.

7. DE KEUKENINSTALLATIE.

Er wordt een volledige, moderne design-keukeninrichting geplaatst in speciale witte meubelplaat en uitgevoerd volgens de detailplannen van een gespecialiseerde firma.
Speciaal voorziene bovenkasten tot aan het plafond bieden een maximum aan opbergruimte.
Alle toestellen zijn van geïntegreerd type en als volgt voorzien : een afwasbak in 18/10 roestvrij staal met gechromeerde mengkraan, vaatwasmachine, frigo met drie sterren vriesvak, ingebouwde combiné-oven en een fornuis met vier vitrokeramische kookplaten en dampkap met koolstoffilter.
Alle apparatuur is van een gekend merk.
Werkblad en opstand worden voorzien in composiet.

8. BANKKLUIS.

Ieder appartement wordt voorzien van een in de muur ingebouwde metalen kluis met een speciaal slot.

9. VESTIAIREKAST.

In de inkomhall is een ruime kleerkast voorzien. Ze is uitgevoerd met schuifdeuren belegd met spiegel.
De binnenindeling bestaat uit een roede en legplanken. Het geheel is voorzien in witte uitvoering.

10. MECHANISCHE LUCHTVERVERSING.

De verluchting van de toiletten, badkamers, douches en bergingen is verzekerd door een erkend verluchtingsysteem.
De afmetingen van de verschillende verluchtingbuizen worden berekend en uitgevoerd door een gespecialiseerde firma.
De nodige verluchtingsroosters voor luchttoevoer zijn voorzien.
Indien door de kopers een droogkast wordt geplaatst, dan dient deze van het type met een ingebouwde condensatie te zijn.
Elk ventilatiesysteem is volledig individueel.

C. TECHNISCHE CONSTRUCTIE-ELEMENTEN

Er wordt enkel gebruik gemaakt van traditionele materialen die met moderne technieken en middelen verwerkt worden.
Het gebouw wordt opgetrokken in een skelet van kolommen, wanden en balken van gewapend beton.
Dragende muren in hard gebakken rode snelbouwstenen. De vloeren zijn eveneens uitgevoerd in gewapend beton.
De studie en berekening van deze dragende structuur alsmede van de funderingen en de kelders wordt opgemaakt door een ter zake bevoegd en erkend studiebureau.
Andere binnenmuren worden uitgevoerd in speciale gipsblokken. De gevels worden uitgevoerd in machinale en speciaal voor de kust voorziene harde gevelstenen met zeer lage porositeit.
Speciale aandacht wordt besteed aan de waterdichtheid van de gevels door tussenplaatsing van roofing waar aangewezen.
De gevelsteen wordt afgewisseld met sierbetonelementen in een witte of speciaal gekleurde en bestudeerde silex/kwartssamenstelling.
Eveneens worden de terraselementen van de voorgevels in dit materiaal uitgevoerd. Alle terrassen zijn beveiligd met leuningen in geanodiseerd aluminium.
Voor de waterdichtheid worden alle voegen tussen gevelsteen, sierbetonelementen en buitenschrijnwerk uitgevoerd in plastisch blijvende siliconenvullingen.
De dakbedekkingen worden uitgevoerd in roofing.
Speciale aluminium dakprofielen of stevige betonnen dekstenen zorgen voor een goede muurafdekking.
De regenafvoerbuizen worden uitgevoerd in PVC en zijn stevig vastgezet met roestvrije beugels. Binnenin het woongedeelte wordt alle metselwerk of beton glad afgewerkt met een eindlaag in witte kalkbepleistering of in witte spuitplamuur.

D. ALGEMENE VOORWAARDEN

1. WIJZIGINGEN VAN GEBRUIKTE MATERIALEN.

De promotor behoudt zich het recht voor detailaanduiding van huidig lastenboek of de keuze van de materialen te wijzigen indien deze zouden nodig geacht of voorgesteld worden door de architect of om commerciële redenen zoals bijvoorbeeld de verdwijning op de markt van bepaalde materialen of procédés of door leveringstermijnen onverenigbaar met de normale gang van de werken.
Alle materialen dienen echter van eerste keus en bepaald te blijven om het gebouw als een stevig en esthetisch geheel op te leveren.

2. ERELONEN VAN DE ARCHITECT.

Deze zijn begrepen in de verkoopprijs en behelzen de verplichtingen die normalerwijze eigen zijn aan zijn beroep met uitzondering van versieringswerken en wijzigingen aan de plannen aangevraagd door de kopers.

3. WERKEN UITGEVOERD DOOR DERDEN.

Het is de koper niet toegelaten werken van om het even welke aard, met uitzondering van schilder-, behang- of decoratiewerken, door derden te laten uitvoeren zonder toestemming van de promotor.

4. PI-dossier.

Van zodra het mogelijk is zal de promotor deze aan de syndicus of beheerder van het gebouw overhandigen.

5. PLANNEN.

Deze werden te goeder trouw opgemaakt door de architect. Minieme afwijkingen worden beschouwd als aanvaardbare verschillen, ze zullen geen eis tot schadevergoeding kunnen rechtvaardigen. De aanduidingen van het lastenboek vervolledigen de plannen.

6. AANSPRAKELIJKHEID.

De promotor noch de architect kunnen aansprakelijk gesteld worden inzake betaling van schade- en/of herstelvergoeding door het vroegtijdig aanbrengen van behang en schilderwerk, door uitslag van pleisterwerk, waterschade, enz... Hetzelfde geldt voor schade te wijten aan kleine zetting of scheurvorming indien de bekleding niet bestaat uit voldoende elastische materialen. Zolang de gemene delen nog niet volledig afgewerkt zijn geschiedt het bewonen van het appartement op eigen verantwoordelijkheid van de koper.

Evolutie van de werken
menu
22 maart 2021 : isolatiechape PUR en betopor
15 december 2020 : plaatsing buitenschrijnwerk
16 november 2020 : gevel in afwerking
25 juni 2020 : op de negende verdieping
11 juni 2020 : op de zevende verdieping
19 mei 2020 : aangekomen op vijfde verdieping
13 maart 2020 : aangekomen op eerste verdieping
20 januari 2020 : funderingsplaat gegoten.
26 november 2019 : onderschoeiingswerken bezig.
13 november 2019 : gebouw gesloopt.
22 oktober 2019 : sloop bezig.
15 oktober 2019 : het ontmantelde gebouw, klaar voor de eigenlijke sloop.
2 juni 2013 : in het midden, het bestaande en te slopen gebouw Françoise-Claire...
eenvoud werkt
fout gezien ? suggestie doen ?