laPlage - syndic : Acapulco



VME Acapulco

Meeuwenlaan 5

8434 Westende


88 appartementen

5 winkels


bouwjaar 1972

renovaties


syndicus sedert 1986


vaste datum jaarlijkse vergadering: derde zondag November


rpr 0843.638.296


Vraagje / melding

1. eerste hulp bij ongemakken (EHBO)
2. volgende eigenaarsvergadering   zondag 15/11/2026
Dagorde en relevante stukken worden gepubliceerd ten laatste twee weken voor de vergadering.
Heeft u agendapunten, deel ze ons mee ten laatste drie weken voor de vergadering.

3. historiek eigenaarsvergaderingen
4. kostenafrekeningen
5. attesten & certificaten
6. studies & onderzoeken
7. liften
8. werken en renovaties
9. procedures
10. diversen
11. basisakte, reglement van mede-eigendom & reglement van interne orde (RIO)
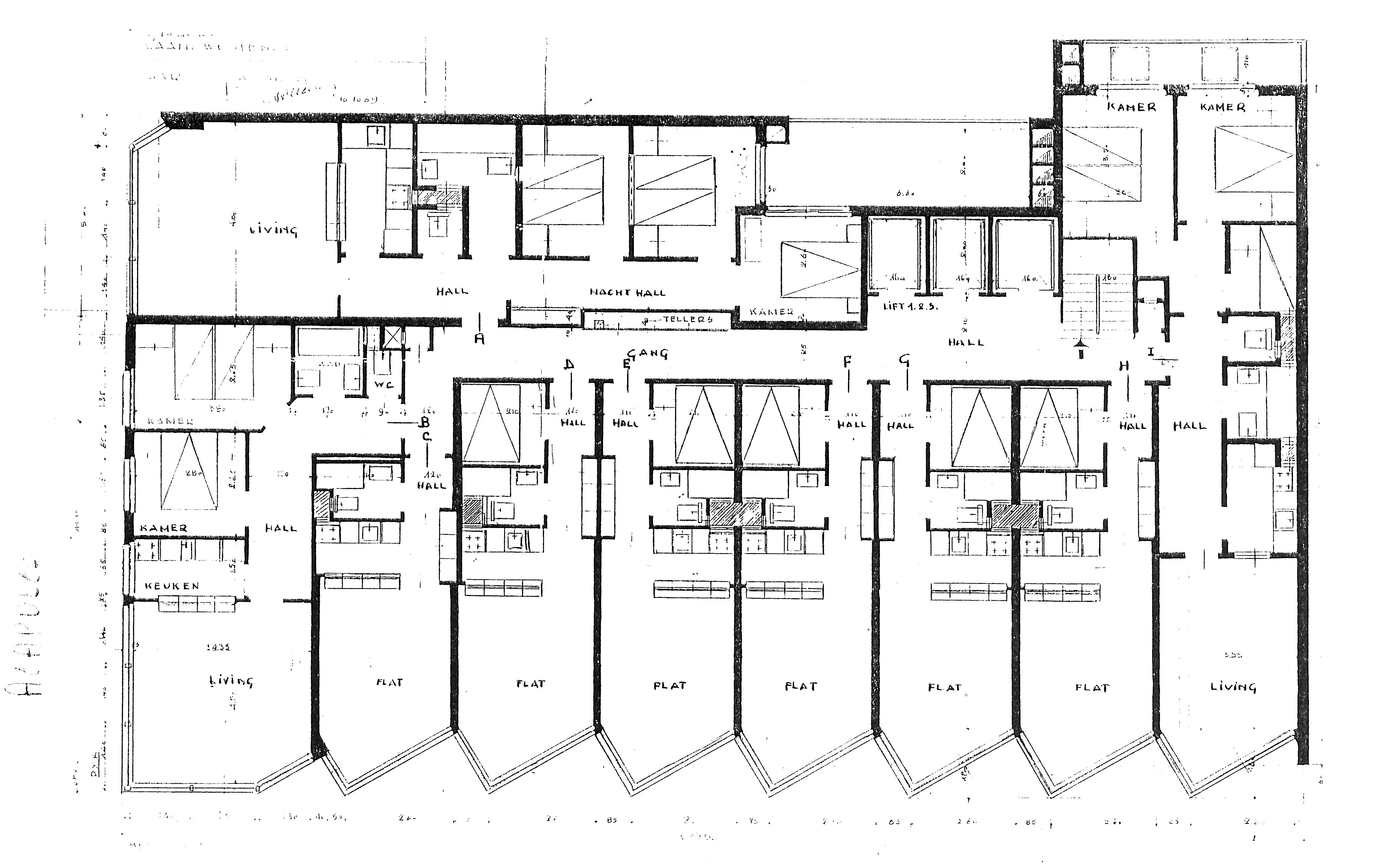
12. plannen
13. contracten, offertes, wie-is-wie, ...
    

14. foto's
uit_de_oude_doos.jpg



Hoewel we de hier meegedeelde informatie steeds met grote zorg behandelen is een vergissing of het ontbreken van een laatste update steeds mogelijk.

eenvoud werkt
fout gezien ? suggestie doen ?